设计方案公示!北京海昌海洋公园更新关键进度

用户头像
乐居财经
 · 北京  

北京进深 徐迪 北京海昌海洋公园最新进展来了!

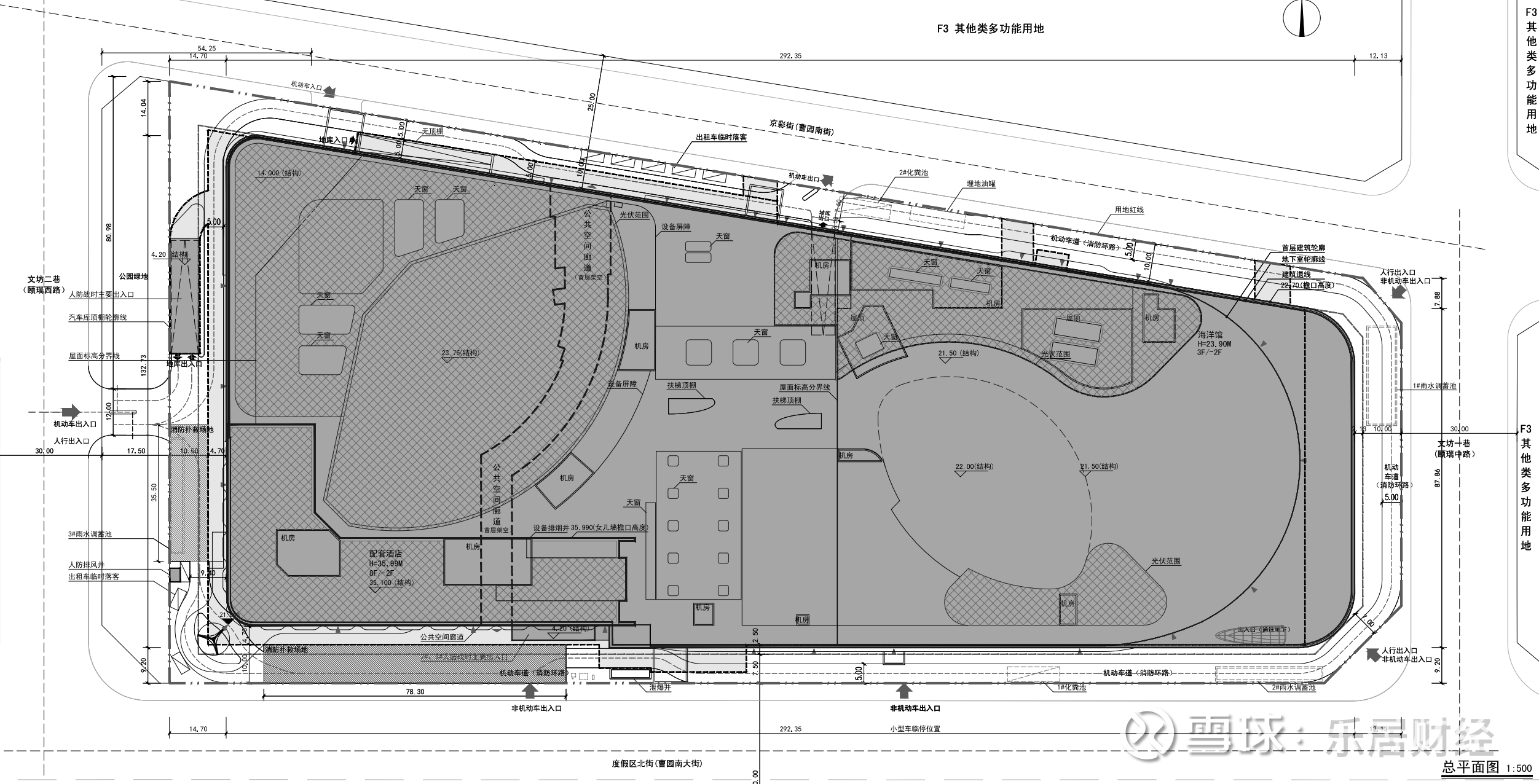
6月10日,北京城市副中心1202街区FZX-1202-0074地块F3其他类多功能用地项目设计方案公示。

建设用地约4.11公顷,总建筑规模约15.71万平方米(其中地上建筑规模约9.05万平方米,地下建筑规模6.66万平方米),容积率2.2,控制高度36米。

项目主体建筑为一栋地上3层、地下2层的海洋馆,另有一栋8F/-2F的配套酒店。

规划558个机动车停车位,其中有15个位于地上。

该地块于2024年9月11日完成出让,由北京通州鲸航置业发展有限公司以8.09亿元底价摘得,规划建设为北京海昌海洋公园

北京通州鲸航置业成立于2023年12月21日,法定代表人为曾莺,注册资本1000万元。公司由北京通州房地产开发有限责任公司持股100%,隶属于北京市通州区国资委。

2023年10月21日,北京通城建集团文旅项目发布会,推出文旅产业项目——通城建集团携手海昌海洋公园推出新型海洋主题公园。

项目总建筑规模约14万平米,预计总投资约38亿元。建成后,北京海昌海洋公园将是副中心首个大型海洋文旅项目,也是北京市2000年以后唯一一个新建的大型海洋主题公园。

拿地两个月后,项目已经启动了包括勘察、方案设计、施工图纸设计、监理等多个工作的招标,估算投资38亿元。

2025年1月,北京海昌公园项目开工,预计2026年建成开放。

近日,又有多则招标公告更新项目进度。中建二局中标项目施工总承包工程,中标价约14.24亿元;

华清荣昊新能源中标项目复合式地源热泵供热供冷系统施工,中标价约4650万元。

公开资料显示,北京海昌海洋公园项目就位于地铁高楼金站南侧,紧邻环球影城未来水世界。

海昌海洋公园将以二十余年海洋馆和主题公园运营经验为依托,引入多样化的海洋生物、极地生物及大型海洋陆生生物,规划生态、科普、研学、互动、表演、艺术、网红打卡、餐饮等多元业态,聚合海洋文娱产品集群,突出稀缺性、创新性和沉浸感,构建集“生态、娱乐、体验、度假”于一体的新型海洋度假生活方式。

海洋馆在外观设计上非常前卫时尚,建筑整体形似一艘“航海巨轮”,流线型的立面造型宛如一艘新启航的巨轮在海浪中航行。侧面安装有流线型的LED屏幕,幕墙则采用鱼纹图案,处处体现着海洋主题元素,夜晚灯光亮起,流光溢彩,将成为文旅区新的文化地标。

馆内拥有20余个主力产品,分布在8大主题分区,包括5000个座位的国内最大的室内鲸豚剧场、2200个座位的欢乐剧场等。该项目具有全国最高的展池视窗面,以及单体体量最大的海水蓄积量,设计中规划了水下客房、大洋池餐厅、互动投喂等一系列新型体验业态。

配套酒店以亲子家庭房为主,包括约250间以海洋和奥特曼为主题的亲子客房,以及全日餐厅、宴会厅和奥特曼独立早餐厅。

相关公司:海昌海洋公园hk02255