文/粤进深 李奕和
位于深圳宝安的万丰海岸城,即将迎来新规产品的首发。
就在近日,万丰海岸城在官微做了官宣。
新一期的项目万丰海岸城檀府,将在9月27日开放展示中心。
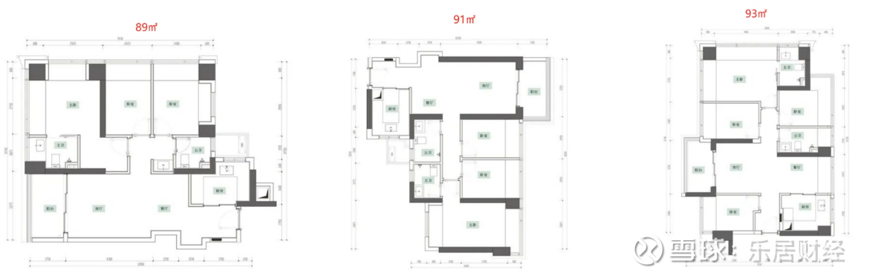
首推带来的产品,面积段为89-169㎡的3-6房产品。
这是万丰海岸城新规产品的首次面市。
户型图也已经出来了,主要为89、91㎡的三房两厅两卫;
93、103、121、125㎡的四房两厅两卫;
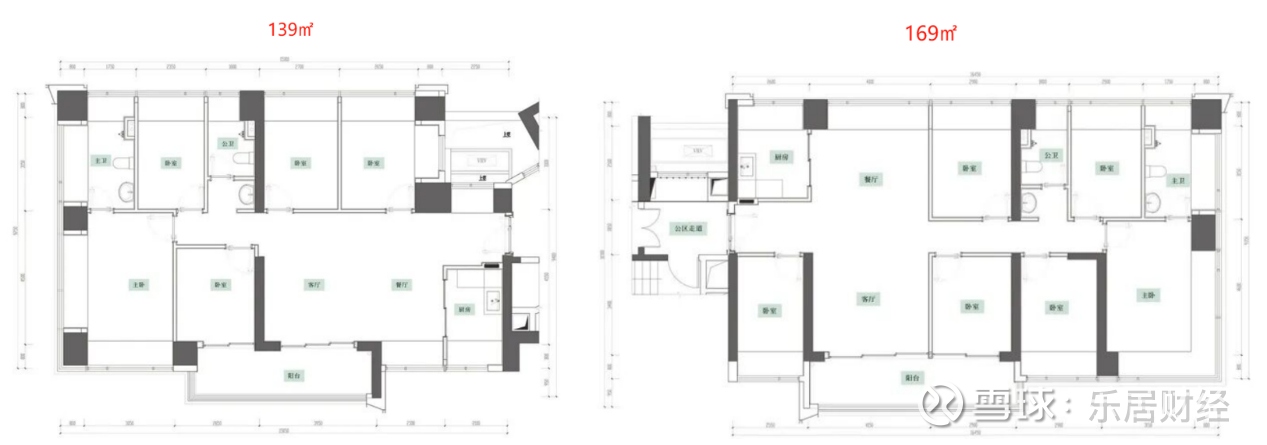
139㎡的五房两厅两卫以及169㎡的六房两厅两卫。



整个看下来,檀府的户型其实还算不错,没有过于明显的槽点。
且由于是新规产品,据称户型最高使用率能到104%。
这里面最大的亮点是93㎡的户型。
做到了四房两卫,在片区还是较为罕见的。
不过有一点,139、169㎡的五房、六房户型。
由于房间数太多了,有一个卧室是夹在主卫和公卫之间的。
作为万丰海岸城的新一期项目,檀府主要由两个地块组成。
总占地面积约3.64万m²,总建筑面积约36.24万m²,计容建筑面积约26.37万m²;
总规划2494户,其中商品房1390套,保障房1104套。
共由七栋总高45-53层的住宅组成,其中,五栋为商品房,两栋为保障房。
这里面,北地块(01地块)是四栋45-47层高的住宅,均为商品房。
南地块(02地块)为三栋48-53层超高层,包含一栋商品房和两栋保障房。
这次即将推出的,是北地块的四栋纯商品房。
有一说一,虽然檀府是新规产品,户型使用率是最大的亮点。
但其他方面,其实也存在不少槽点。
首先一点,这次首推的北地块,容积率达到6.79。
南地块的容积率更达7.72。
相比深圳近段时间以来推出的新地块,容积率高出不少。
而且项目都是超高层,楼间距、小区花园等休闲空间也并不宽裕。
居住舒适度或许不是那么友好。
这里面还有一点,项目的东侧是看大钟山公园。其实很不错。
但西侧却是密集的居民楼体,且距离上离得比较近。
后期西侧中低楼层的户型,视野景观以及采光上或存在一定影响。
此外,檀府的五栋普通商品房,绝大部分为一层七户、八户设计。
仅有最北端的3栋二单元是一层四户,整个小区的居住密度偏大。
首推的北地块,3栋二单元是3梯4户;
另外的三栋,3栋一单元、2栋一二单元则是3梯7/8户。
加上项目是超高层,上下班高峰等电梯或是一个问题。
还有一点,虽然北地块没有保障房,但整个檀府项目是有保障房的。
其规划总户数2494户,其中普通商品房1390户。保障房占比超过四成。
檀府的建设单位是深圳市海岸新城投资有限公司(简称“海岸新城投资”)。
该公司实际上也是深圳西部整个网红大盘万丰海岸城的开发主体。
万丰海岸城的整体规划建筑面积超过500万平方米,集商业、住宅、产业、甲级写字楼、酒店等于一体,是超大型城市综合体项目。

该项目由海岸新城投资负责开发建设,是深圳海岸集团和万丰股份合作开发的项目。
其最早是万丰南山工业区及万丈埔工业区(一区)片区城市更新单元,涉及拆除用地面积约25万平方米,并且将扩容周边约70万平方米拆改范围,是一个实打实的旧改巨无霸。
此前,万丰海岸城已打造多个项目,包括锦园、珑园、珺园、玺园、海岸大厦(三期)、瑧园(三期)、瀚府(四期)等。
其中珑园、珺园均为回迁房,锦园为商品房保障房,玺园、瑧园、瀚府为商品房。
去年3月和7月,万丰海岸城四期瀚府6栋、5栋获批预售,至此,四期瀚府迎来收官。
目前,瀚府项目仍有产品在售。
这次檀府的到来,可以说小小背刺了瀚府一下。
可对比的是,檀府作为新规产品,最小93㎡就做到了4房2卫。
而瀚府100㎡的户型才做了3房2卫。面积更小,却整整多出来一个房间。
价格上,瀚府目前均价5.3万/㎡左右。
檀府的价格虽然官方还没放出来,整体上应该差不了多少。
不过也有市场消息传出,可能4万七八都有;
甚至低楼层最低可能去到4万六左右。
那到底该不该出手?只能说,户型上看,新规确实是不错的。
但还要综合考量下项目上面说到的整体情况。
特别是,万丰海岸城已经历多次入市。往期的项目,也曾有业主反映过问题。
就看顶着新规光环的檀府,大家的接受度如何了。