文/上海进深 严明会
上周,上海“好房子”标准正式落地,楼市一夜之间进入新旧交替的博弈期。
一边是新规对阳台、设备平台、外立面、风雨连廊、架空层等细节的明确约束,另一边是一批踩中政策空窗期的激进产品悄然登场,保利誉滨江就是其中的玩家之一。
根据新规,每套住宅阳台面积不得超过户型面积的10%,且不超过16㎡。
誉滨江139㎡户型的阳台面积约15㎡,150㎡户型的阳台面积约17㎡,已经突破当前规则的“红线”。
房子交付后,业主可在不破坏外立面的前提下可自行对阳台进行打通和改造,加之部分户型通过对南北飘窗的改造,实际可利用空间推高至90%甚至95%。
这种极致追求实得率的做法,在杨浦滨江此前的项目中几乎没见过,往后受新规限制,也很难再有同类产品。
保利誉滨江首开建面约117-139㎡的3-4房,预计国庆节开放接待中心和样板房,年底正式入市。
项目的推进节点卡得很微妙,既赶在新规完全落地、同类激进产品消失前亮相,又能抓住年底改善客群的置业窗口期。
飘窗“可有可无”
对比杨浦滨江过往项目,保利誉滨江的打造可谓大胆放开了手脚,部分户型的飘窗后续可改造利用,几乎做到了每个户型都有“杀手锏”。
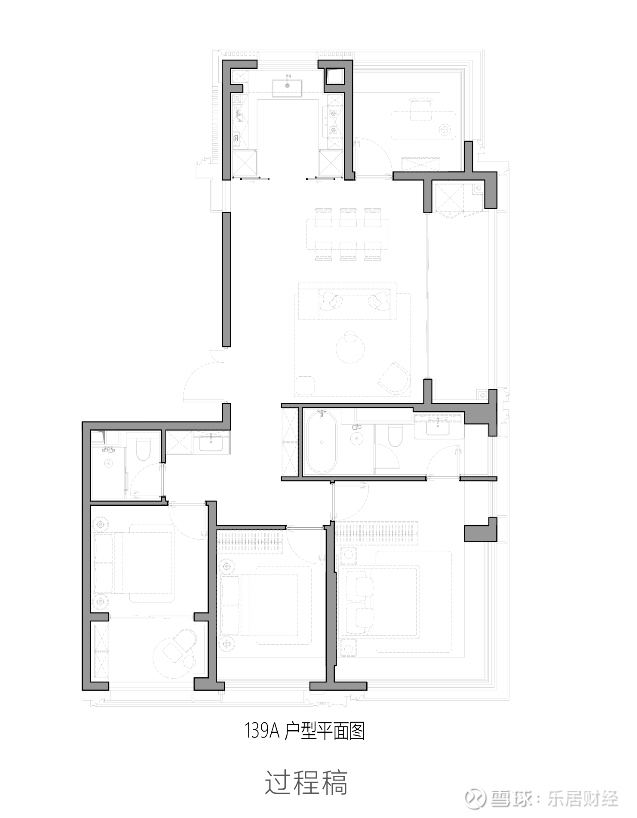
117㎡三房:
除了一栋楼是类一梯一户,电梯对开门,其余均为真一梯一户,所有户型都有入户私厅;南向双阳台,客厅和次卧打通可做大横厅;飞机户型,室内无浪费空间;北侧书房带有270度转角飘窗。
南向主卧的飘窗改造后,多出了几个平方;次卫飘窗改造后,则多出了淋浴空间。

139㎡四房:
三开间朝南,均是卧室,南向面宽约10米;边厅设计,侧向总面宽更是达到14.1米;南次卧和客厅双阳台设计。南北两个卧室双转角飘窗,也就是说,除了西侧,另外三面几乎都是窗。
主卫四分离,还规划了放置浴缸的区域,这在同面积段户型中很少见。

150㎡四房:
此户型是杨浦滨江首个三阳台四房。南向四面宽,约14.2米,两个次卧都连接阳台。客厅面宽4.3米,进深7米,客餐厨阳台一体化,主卧270度大转角飘窗。

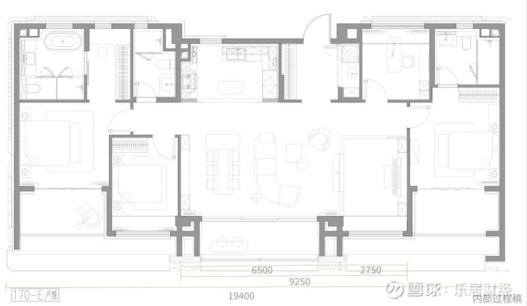
170㎡四房:
南向五面宽,约17.2米,餐客厅面宽达8.2米;东西双套房,算上北侧的次卧紧连卫生间,就是3个套房;主卧面宽5.4米,配备了独立的衣帽间,空间足够大至可区分男女储物区域。

此面积段的部分户型做到了六开间朝南,面宽约19.5米。这个尺度感,已经可以媲美200㎡以上的大平层了。

东外滩首个叠拼
5月9日,今年第四批次土拍中,保利置业经过72轮竞价,以总价424063万元竞得杨浦滨江地块,溢价率26.3%,折合楼板价80199元/㎡。
比隔壁中海云邸7.3万/㎡的楼板价还要再贵10%,刷新杨浦内中环地价纪录。
半个月后,地块规划方案就公示。36天后,项目规划进行了调整。
楼盘的布局没有变动,重点对多层住宅的高度和层数做了调整,甚至连造型也变了,成为东外滩区域首个叠拼产品。
项目的建设单位“上海盛真置业有限公司”,法定代表人陈吉,他同时也是保利置业上海公司总经理。
高地价压力下,开发商必须在产品上寻求突破。
这块地的先天条件并不十分优秀,南偏东近50度。保利置业当时的楼市规则下,把能想到的优势都安排上了。
在2.5容积率、40%中小套比例的限制情况下,保利置业在这个不大的地块中,挤出了三栋叠拼。
社区内部有下沉式庭院,1500㎡地下会所涵盖室内高尔夫、恒温泳池、瑜伽室、阳光棋牌等多功能场景。
另外,保利置业在项目东侧代建了一座约6000㎡的量子公园,还在这里打造了立体式二层景观台,直接作为社区的专属后花园。誉滨江与公园紧密相连,东侧设计了人行出入口方便直达。
不可忽视的是,保利誉滨江也面临不小的竞争压力。
周边待入市项目有中信泰富外滩道、中建壹品外滩元境、中铁置业云绣外滩、中铁置业I4-01地块,已入市的项目有中海云邸玖章、兴华里等。
放眼整个杨浦滨江,近半年内楼面价屡创新高。
6月的五批次土拍,保利发展经过95轮竞价后拿下平凉社区地块,楼板价95530元/㎡,溢价率30.8%,创杨浦区公开市场土地出让单价新高;9月的七批次土拍,中铁置业联合体经过75轮竞价,以92225元/㎡拿下滨江宅地,溢价率28%。
不断攀升的土地成本,预示着未来入市项目必须在产品力上只会更卷。
目前来看,保利誉滨江凭借户型尺度的大胆突破、叠拼补位和公园配套,已经抢占了新规落地前的先机。